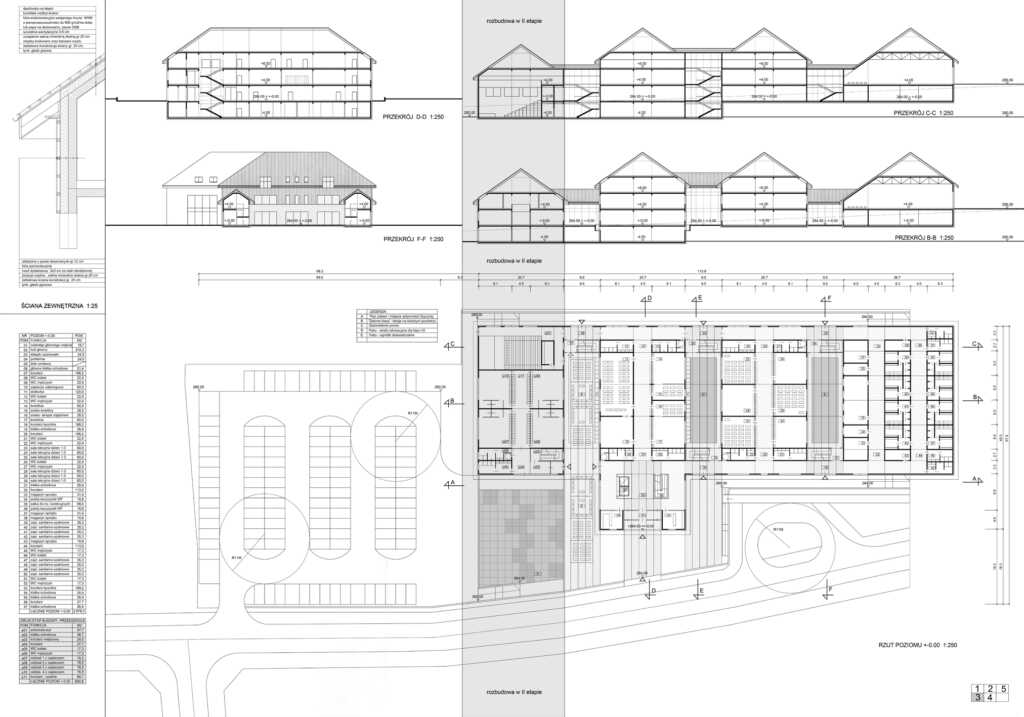
Szkoła podstawowa w Modlniczce

Konkurs na opracowanie koncepcji architektoniczno-urbanistycznej szkoły podstawowej wraz z zagospodarowaniem terenu w Modlniczce.

Projekt : Współautor

Inwestor : Gmina Wielka Wieś

Lokalizacja : rejon ul. Krakowskiej i ul .Podgórskiej

Kategoria : Architektura użyteczności publicznej

Pow. użytkowa : 1100 m2

Rok : 2025

Wizualizacje : Barbara Getter

KONCEPCJA

Rozwiązanie projektowe zakłada zamknięcie wszystkich podstawowych funkcji obiektu w jednej bryle prostopadłościanu z płaskim, zielonym dachem.

GALERIA
Przewiń do góry